VERKAUF & VERMIETUNG
Telefon: +49 (341) 9 10 48 99
Toggle navigation
Home
Angebote
Kontakt
Verwaltung
Knuffige 1-Raum-Wohnung in Möckern
PDF
Drucken
Huygenstraße 18 | 04159 Leipzig
Objekt ID
A 5686
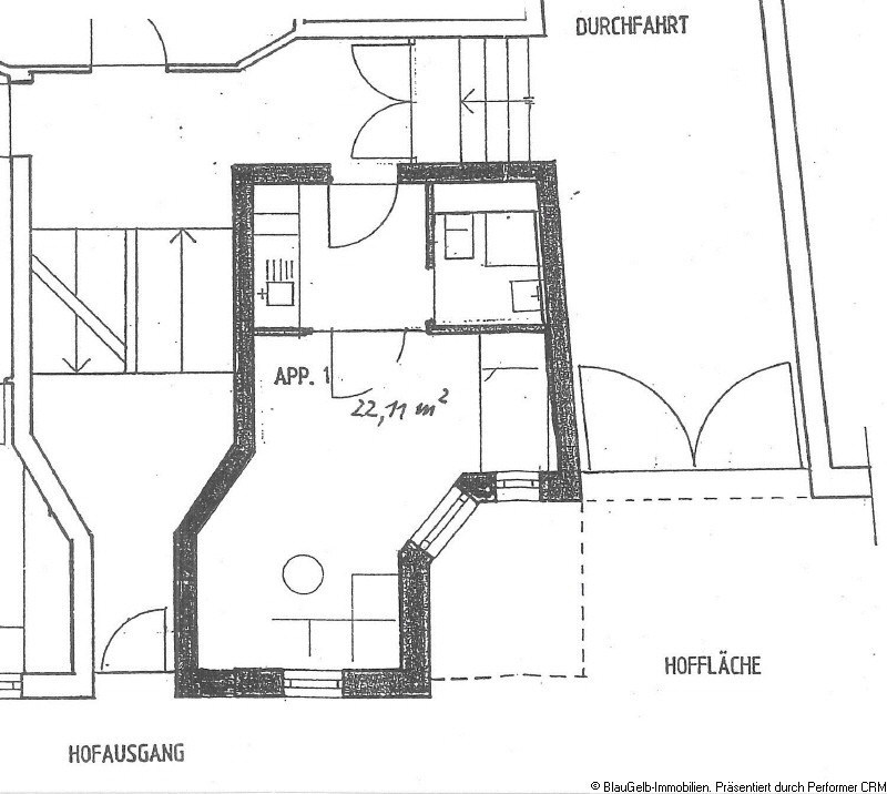
Wohnfläche ca.:
22,11 m²
Zimmer:
2,0
Baujahr:
1900
Zustand:
gepflegt
Altbau
✓
Warmmiete:
322,94 €
Nebenkosten:
70,00 €
Heizkosten:
in Nebenkosten enthalten
Kaution:
758,82 €
Ausstattung
☑
Einbauküche
☑
Zentralheizung
☑
Gasbefeuerung
☑
Gartennutzung
Objektbeschreibung
Süße kleine Wohnung im sanierten Jugendstil, Bad mit Wanne, hell gefliest.
Die Fußböden der Räume, Flur und Küche wurden mit Laminat ausgestattet.
Die Wohnung ist komplett rückseitig gelegen, zum Garten hin, von der Straße vorn nicht zu sehen.
Die Einbauküche ist in der Wohnung vorhanden, fehlt nur hier, auf den Fotos.
Die Höhe der Miete wurde unter Berücksichtigung der gesetzlichen Vorgaben zur Mietpreisbindung gemäß der jeweils gültigen Mietpreisbremse festgelegt.
Die Vorlage eines Energieausweises ist nicht erforderlich, da es sich bei diesem Objekt um ein Baudenkmal handelt (§24 EnEV).
Knuffige 1-Raum-Wohnung in Möckern
Lage
Die Mischung aus Alt-/Neubau und Siedlungen sowie Gründerzeitbauten verleihen dem im Nordwesten der Stadt liegenden Ortsteil Möckern einen schönen Wohncharakter. Zahlreiche Wohnbegrünungen, die Nähe zur Elsteraue und Grünanlagen lockern das Ortsbild auf. Das Gelände der ehemaligen Schumann-Kaserne wird bevorzugt als Behördensitz genutzt (z.B. LVA, Arbeitsamt). Es entstand das Stadtteilzentrum Möckern, welches den Mittelpunkt der örtlichen Nahversorgung darstellt. Hauptmagistrale: Georg-Schumann-Straße. Als B6 gewährleistes diese Ausfallstraße sehr gute Verkehrsanbindungen zur City sowie auch zum Flughafen Leipzig-Halle.
In unmittelbarer Nähe finden Sie alle Bereiche des täglichen Bedarfs (z. B. Einkaufsmöglichkeiten, Arztpraxen, Apotheken, Kindergrippen und Schulen) sowie Freizeitmöglichkeiten. Die Infrastruktur ist gut, die öffentlichen Verkehrsmittel sind schnell zu erreichen.
sonstige Angaben
Baujahr: 1900
Befeuerung/Energieträger: Gas
Heizungsart: Zentralheizung
Die in diesem Exposé angegebenen Wohn- und Nutzflächen sowie die Informationen zum Objekt beruhen auf keinem eigenen Aufmaß, sondern beruhen auf Angaben Dritter.
Für die Richtigkeit der Angaben übernehmen wir keine Gewähr und sichern diese Eigenschaft nicht zu.
Alle weiteren Angaben nach bestem Wissen.
Irrtum und Zwischenverkauf/Zwischenvermietung
No Coordinations found.
BlauGelb-Immobilien e.K.
Makler/Immobilienvermittlung
Anton-Zickmantel-Str. 22
04249 Leipzig
Telefon: (03 41) 9 10 48 99
Telefax: (03 41) 9 10 48 98
E-Mail:
jk@blaugelb-immobilien.com
www.blaugelb-immobilien.com
Teilen Sie uns Ihr Anliegen mit:
Name
Adresse
E-Mail
Telefonnummer
Betreff
Ihre Anfrage
Ich habe die
Datenschutzerklärung
zur Kenntnis genommen. Ich stimme zu, dass meine Angaben zur Kontaktaufnahme und für Rückfragen dauerhaft gespeichert werden. Hinweis: Sie können Ihre Einwilligung jederzeit für die Zukunft per Mail an widerrufen.
Sicherheitscode
SENDEN
Wir sind Mitglied im
Home
Impressum
Datenschutz